fbpx

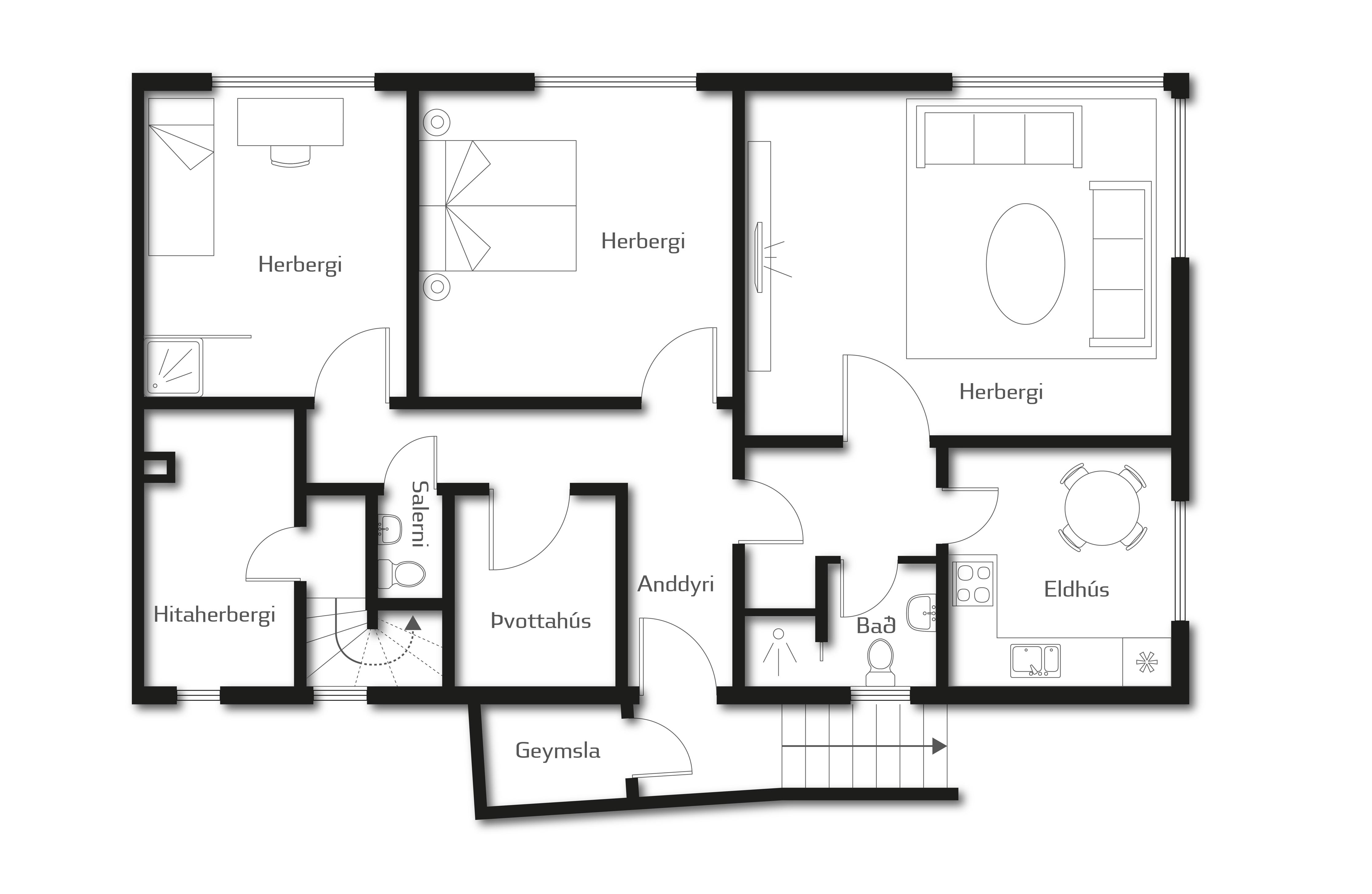
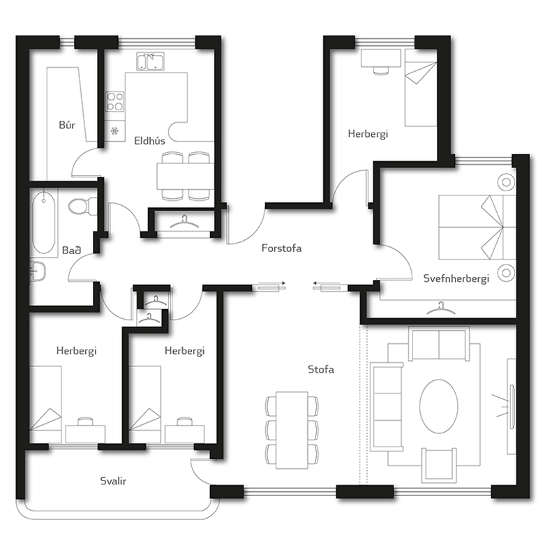
Endurteiknaðar grunnmyndir sem sýna skipulag eignarinnar vel

Grunnmyndir

Það að geta séð skipulag og herbergjaskipan eignarinnar er ótvíræður kostur fyrir kaupendur. Þó ljósmyndari reyni að sýna hvernig eignin liggur á ljósmyndum þá er oft erfitt fyrir þann sem hefur ekki komið í eignina að sjá hvernig skipulag er í raun.

Teikningar sem sækja má á vef sveitarfélagana eru þar að auki oft óskýrar og búið að breyta innra skipulagi svo þær sýna oft ekki rétta mynd af eigninni. 

Við bjóðum upp á að endurteikna grunnmyndir á skýran hátt sem sýna vel raunverulegt skiplag ef einhverjar breytingar/viðbætur hafa átt sér stað. Þar má nefna breytingu á herbergjaskipan, ef pallur hefur verið byggður þá er honum bætt við o.s.frv.

Við bókun er mikilvægt að senda upplýsingar ef breytingar hafa orðið á upprunalegri/nýjustu teikningu svo hægt sé að taka tillit til þess við endurteiknun. Best er að fá teikningu sem skýrir breytingar ca. Einnig þarf að fylgja grunnmynd af rými sem teiknað er. Teikningar er hægt að sækja á vef sveitarfélagana.


Seltjarnarnes

Hægt er að senda beiðni um afrit teikninga og gagna á netfangið This email address is being protected from spambots. You need JavaScript enabled to view it.


Panta teikningu

Fylltu út formið hér að neðan til að senda inn pöntun á teikningu. Einnig er mögulegt að senda beint á netfangið This email address is being protected from spambots. You need JavaScript enabled to view it.
ógilt netfang
Invalid Input
Invalid Input
Invalid Input

Dæmi um endurteiknaðar grunnmyndir

Smella má á myndirnar til að sjá þær í betri upplausn

Instagram

FASTEIGNALJÓSMYNDUN
FASTEIGNALJÓSMYNDUN
FASTEIGNALJÓSMYNDUN
FASTEIGNALJÓSMYNDUN
FASTEIGNALJÓSMYNDUN
FASTEIGNALJÓSMYNDUN
FASTEIGNALJÓSMYNDUN
FASTEIGNALJÓSMYNDUN
FASTEIGNALJÓSMYNDUN
FASTEIGNALJÓSMYNDUN
FASTEIGNALJÓSMYNDUN
FASTEIGNALJÓSMYNDUN
FASTEIGNALJÓSMYNDUN
FASTEIGNALJÓSMYNDUN
FASTEIGNALJÓSMYNDUN
FASTEIGNALJÓSMYNDUN
FASTEIGNALJÓSMYNDUN
FASTEIGNALJÓSMYNDUN
FASTEIGNALJÓSMYNDUN
FASTEIGNALJÓSMYNDUN

Vefheimar ehf: Kennitala: 4103070220

Fasteignaljósmyndun | Bílastúdíó

Frá árinu 2008 hefur Fasteignaljósmyndun verið leiðandi í þjónustu við fasteignasala og fasteignaeigendur
Hafðu samband

This email address is being protected from spambots. You need JavaScript enabled to view it.